港科大(广州)实验室探秘 | 智能自动驾驶技术中心
发布时间: 2023-10-25

智能自动驾驶技术中心
Intelligent Autonomous Driving Center
(IADC)
请介绍实验室的筹备建设历程
智能自动驾驶技术中心(简称“IADC”),与港科广校园同期开始筹建,于2022年9月正式投入使用。实验室在建设过程中经历了一系列困难和挑战。
首先,团队成员的建设是一个关键环节。经过近4年的努力,实验室吸引了一批优秀的科研人员和工程师加入,形成了一个高效协作的团队。其次,实验室设备的采购和调试是另一个重要的工作。团队根据实验室的需要制定了详细的设备清单,并与供应商进行沟通谈判,确保采购到合适的设备和技术支持。设备到位后,团队成员进行了详细的调试和测试,以确保其能够正常运行并满足实验室的需求。最终,在学校提供的启动经费与场地支持下,经过不懈努力,我们建成了IADC并投入使用。中心将继续致力于自动驾驶领域的研究和创新,为相关领域的发展作贡献。
请介绍实验室的布局和成员构成
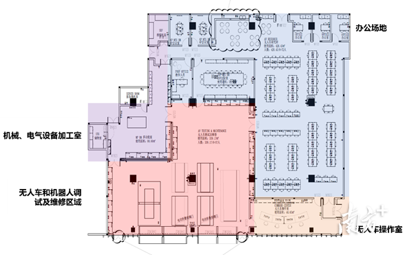
实验室平面图
实验室包括多个区域——无人车和机器人调试及维修区域,机械、电气设备加工室,无人操作室以及办公和会议区域。实验室建筑总面积约1500平方米,配备自动驾驶乘用车平台、低速无人物流车平台、移动机器人平台、光学动作捕捉系统、数据中心等测试平台以及机械、电气加工设备。
调试及维修区域
机械、电气设备加工室
无人车操作室
办公场地
实验室目前有近80人,其中教授11名,博士后1名,技术员2人,其余大部分是PhD,少数红鸟硕士生。所有老师和学生都来自港科广不同枢纽和学域,大家汇聚在这里攻克跨模块、跨学科的无人系统难题。
实验室引进了哪些先进设备与仪器?
请讲解一下设备的用处、独特之处。
IADC是国内外极少拥有全栈无人系统平台的实验室之一,拥有各类无人系统和设备,如轮式、足式、室内、室外无人系统,且拥有丰富的软件设计和硬件开发经验。实验室内有相当一部分的科研平台都是自主设计和研发的,包括无人物流车、自动载人车和多传感器手持设备。
实验室设备
实验室的研究主题是什么?目前在做
哪些具体的研究?有什么产出?
研究主题及产出
实验室的研究紧密围绕自动驾驶系统上下游的各个方面,方向涵盖三维环境重建、多传感器融合和感知、智能决策、运动规划、控制、云服务、电机执行等。
本实验团队是国内最早提出全栈式低速无人驾驶解决方案的团队之一,涵盖5个行业应用,部署超过200台无人车,10多项国际领先技术,总里程超1万公里,人均接管率小于5%。
无人系统涵盖多种应用场景:无人物流、安防、消杀,以及载人平台,并取得香港第一个无人车驾驶牌照。
全栈式低速无人驾驶
本团队解决了大型集装箱智能牵引车(IGV)在复杂港口环境下的智能感知、高精度定位、无人导航的问题,实现了目前全国规模最大的无人导航IGV车队商业化作业,形成了极具特色的智慧码头“南沙方案”。1.2平方公里无GPS场景下,纯视觉定位精度达5厘米,部署120辆IGV,超过1万小时连续作业,成本下降40%。
大型集装箱智能牵引车
本团队是全球最早将无人驾驶技术应用于抗疫工作的团队之一,单辆车可完成3-4人工作,总里程超1千公里,服务1万人次,运送5千余份盒饭,运输物资达20吨,疫区消杀时长近100小时。
无人车应用于抗疫工作
本团队针对制造业、仓储物流业等劳动高度密集行业,自主研发了更智能化、柔性更强、运动更流畅高效的移动操作机器人,有助于解决我国目前人口老龄化严重、劳动力不足的社会现状以及现有自动化设备智能化低、柔性不足的软硬件现状。
移动操作机器人
本团队对高功率密度的一体化电机进行建模与设计。
电机建模与设计
实验室的研究目标是什么?希望能产
生什么样的社会效益?
本实验室扎根自动驾驶技术前沿,旨在推动科学研究和创新成果在自动驾驶领域的应用。依托广州南沙的优越地理位置和港珠澳大湾区的技术资源,为研究人员和产业界提供一个独一无二的合作平台,进而实现自动驾驶技术在多个领域的全面应用,创造多方共赢的效益,并深刻地改变人类的生活方式。具体来说,我们期望以下几方面的成果和效益:
社会效益
总的来说,实验室将致力于推动自动驾驶技术的研究和应用,为未来的出行方式和城市发展带来革命性的改变。通过创新与合作,我们期望实现更安全、更清洁、更便利、更智能的出行方式,从而改善人们的生活,并为社会和环境带来积极的影响。
来源:香港科技大学广州

Copyright © 2022 中国科学技术协会 版权所有 | 京ICP备16016202号-20
Copyright © 2022 中国科学技术协会 版权所有 | 京ICP备16016202号-20